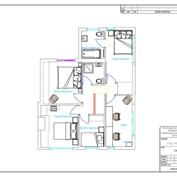
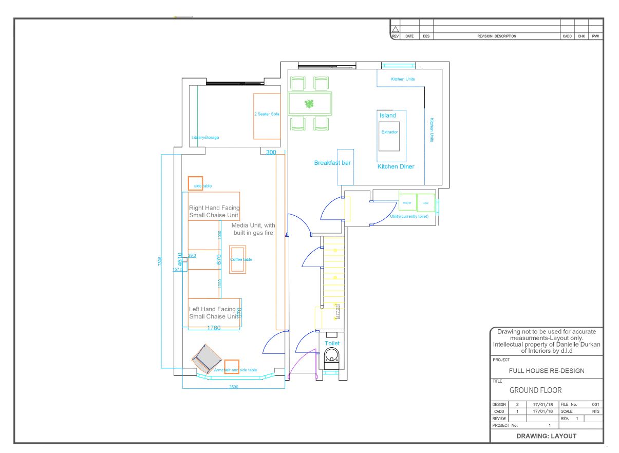
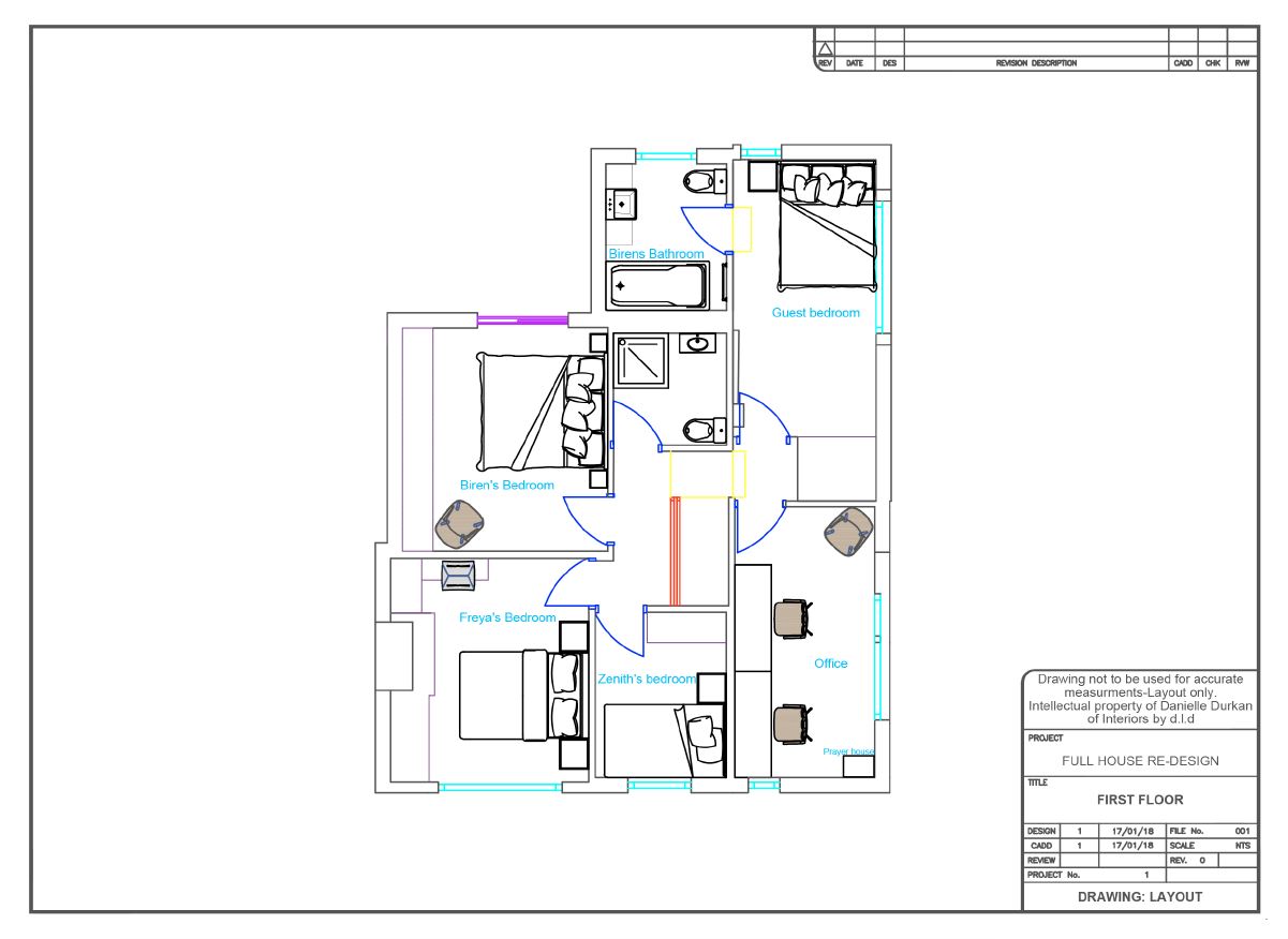
Location: Leicestershire
Type: Residential – Interior Design
Status: Completed- not styledÂ
đź–‹ Project Brief
This redesign was driven by one clear objective: to create a calm, uncluttered home that truly supported the lives of a grown-up, fast-paced family. The previous interior was dense with detail, visual weight, and unnecessary maintenance. The new brief called for the opposite — a minimalist, fuss-free space that offered clarity, comfort, and ease.
Our role was to strip away what no longer served, leaving behind a functional, elegant environment defined by clean lines, subtle detailing, and effortless flow. Every element was chosen with intention, ensuring that the design supported daily routines rather than disrupted them.
This project focused heavily on problem-solving — rethinking layout, storage, and finishes to align with the family’s busy lifestyle. Low-maintenance materials and an airy palette created a sense of quiet luxury, without the need for excess or ornamentation.
While the images reflect the space prior to final styling and accessories, they showcase the essence of the project: a space that offers visual clarity, emotional calm, and functional simplicity — a true reflection of the family’s evolving needs.
🔍 Key Focus Areas
- Minimalist interior planning for ease of maintenance
- Storage solutions hidden within architectural details
- Elimination of visual clutter
- Emphasis on comfort without excess
💡 Outcome / ImpactThe transformation resulted in a home that feels light, grounded, and deeply intentional. While understated, every choice serves a purpose — allowing the family to enjoy their space with less distraction and more peace of mind. This project proves that good design isn’t about more — it’s about what’s left when only the right elements remain.







